30FT PREMIUM EXPANDER
two bedroom from $45,000
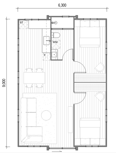
The 30FT expandable home is designed for comfort and functionality, featuring two spacious bedrooms, a versatile living area, and a well-equipped kitchenette that can be connected to a gas stove and fridge. The kitchen offers ample storage with a full set of cabinets, drawers, and overhead cabinets, providing everything needed for a modern cooking experience. The bathroom is a highlight, boasting a full-width large shower area with twin shower heads, a toilet, and a vanity with a full mirror cabinet, ensuring a luxurious and practical space.
Both the external and internal walls are constructed with an EPS sandwich panel system, offering superior insulation for enhanced energy efficiency. The home is pre-fitted with double GPOs, allowing easy installation of air conditioning for additional comfort.
The bedrooms and living room are generously sized, providing flexibility for various uses. With multiple options for external cladding selections, you can personalize the home's appearance to create a unique and attractive look that suits your style.

Layout Option 1
Layout Option 2
30FT _ 2 BEDROOMS
Signature Wood
from $48,000 +gst
Dimensions
Fold: 2200(W) x 5900(L) x 2480(H) mm
Expanded: 6300(W) x 9000(L) x 2480(H) mm
Key Features
-
Heavy-duty steel frame
-
EPS sandwich paneling External Walls
-
50mm Insulated EPS internal wall and ceiling
-
Aluminum double-glazing windows
-
Full-width shower
-
Australian-compliant plumbing and electrical components
-
Fly screens to windows and sliding door
-
LED lightings
-
Twin showers
-
Large vanity with full-width mirror overhead cabinet
-
Fully fitted kitchen with overhead cupboard and large stainless steel sink
-
Space and gas outlet provided for cooktop
-
Space and GPO provided for the fridge
Accessories (Optional)
-
Custom built trailer
-
Large outdoor decking with steel Balustrade
-
Customized roof
Classic White
from $45,000 +gst
Classic White- White Frame
White EPS Panel Finish

Classic Grey - Black Frame
Grey EPS Panel Finish
Signature Wood - White Frame
Metal Cladding Finish
Signature Wood - Black Frame
Metal Cladding Finish
Timeless Grey - White Frame
Metal Cladding Finish

Timeless Grey - Black Frame
Metal Cladding Finish
What is included















